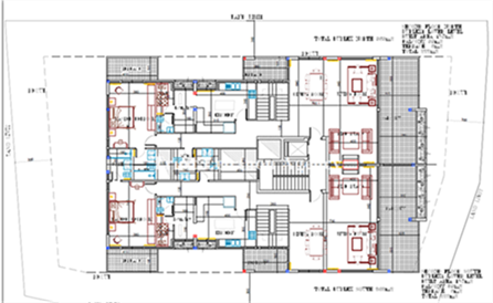
Apartment Underconstruction For Sale in Metn, Beit Mery

Ref# : BM20352

500,000 USD | Negotiable
Property Type: Apartment Underconstruction

Floor: 3
Property State: Super Deluxe

Year Built: 2025

* Cash Only Accepted

Area
225 m²
Bedrooms
2 + 1 Master Bedrooms
Bathrooms
4
View
Mountain
Parking
2
Storage
1

Details

  • Reception Rooms(2)
  • Bedroom(2)
  • Bathroom(4)
  • Bedroom (Master)(1)
  • Parking(2)
  • Maid Room
  • Maid Bathroom
  • Dining Room(1)
  • Storage Room

Amenities

  • Gypsum Board ceiling
  • Lighting
  • Underground Parking spot
  • Water Tank
  • Heating System
  • Electric window shutters
  • Balconies
  • AC Split units
  • Fireplace
  • Double Wall / Glazed

Description

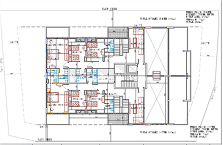
High End under construction Project | ** PAYMENT FACILITIES* | 2nd Floor also av 225 Sqm + Terrace at 450 K | and Duplex with Roof 345 Sqm at 690 K | 2000$ per Sqm | Delivery date at end of 2026